Hamilton Herald Masthead

Editorial


Front Page - Friday, July 27, 2018

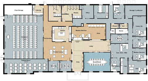
GCR offices undergoing renovation




A rendering of the finished layout, currently under construction at Greater Chattanooga Realtors. - Rendering provided

Renovations are underway at Greater Chattanooga Realtors. In a few months, the office will include a spacious member lounge, updated technology and a more convenient layout.

Renovations are expected to wrap up late this year. During the makeover, the association’s office will be open during normal hours – Monday through Friday from 8:30 a.m.-5 pm.

“Have no fear; the association staff is here,” says an update on the project on www.gcar.net.

Throughout the renovations, all classes will be held at Chattanooga State.

The association is urging members to park as far away as possible from construction and use the temporary entrance on the left side of the building.

The staff is also asking members to call (423 698-8001) or email (info@gcar.net) before an office visits.

“As you know, construction comes with its fair share of surprises, and that will allow association staff to best serve our more than 2,000 members,” says the update.

Source: www.gcar.net